Skip to content

ACA

LARGE PROJECTSLARGE PROJECTS
  • HOME
  • LARGE PROJETS
  • ON THE BOARD
  • SMALL RESIDENTIAL
  • SUSTAINABILITY
  • PRESS
  • CONTACT

  • GO TO LARGE PROJECTSUK, EU, N.America
  • Cinnabar Wharf, London
  • Hermitage Competition, London
  • 151 TowerBridge Rd., London
  • Justice Institute, Vancouver
  • Bermondsey Market Hotel, London
  • Torun Stadium, Poland
  • Polish Olimpic Centre
  • Bristol Harbour, UK
  • Vancouver Casino
  • Interiors

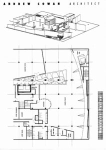
 Casino, Vancouver





   




 Plan






 
 Site under construction



  


     Dragon scales & clouds



  Hall





  Dragon lights








 Site under construction






casino005
chinatownvancouver-1024x7681

Chinatown

casino001
EYE20220318_09352320_0001
casi3

Plan

casino003

interior enamelled walls

unnamed
© 2026 ACA | Powered by Beaver Builder